Sophiastraat 32

Sophiastraat 32

GOUDA

vraagprijs

verkocht

Ook uw woning of bedrijfspand succesvol verkopen? Neem dan contactmet ons op

Gratis waardebepaling

Omschrijving

Karakteristieke jaren '30 woning met moderne keuken en openslaande deuren naar de zonnige tuin.

In een rustige straat met veel groen en voorzieningen in de buurt ligt dit charmante jaren ’30 woonhuis. Binnen tref je een prettige combinatie van authentieke details en een eigentijdse afwerking. De vernieuwde keuken, openslaande tuindeuren en de ruime zolder maken dit huis verrassend compleet.

De woning ligt in een groene woonwijk met alle voorzieningen binnen handbereik. Supermarkten, scholen, openbaar vervoer en uitvalswegen zijn goed bereikbaar. Ook zijn er parken en speeltuinen in de buurt, wat de locatie aantrekkelijk maakt voor jong en oud.

Woonoppervlakte: ca. 94 m², perceeloppervlakte: 109 m², bouwjaar: 1935.

Bijzonderheden:
- Sfeervolle jaren '30 woning;
- Vernieuwde open keuken met inbouwapparatuur;
- Originele granitovloer in de hal en keuken;
- Woonkamer met houten vloer;
- Grote open zolder met kunststof dakkapel en twee dakramen;
- Meterkast met 11 groepen en aardlekschakelschakelaar;
- Gelegen in rustige straat nabij alle voorzieningen, dicht bij openbaar vervoer en het gezellige centrum van Gouda.

Indeling
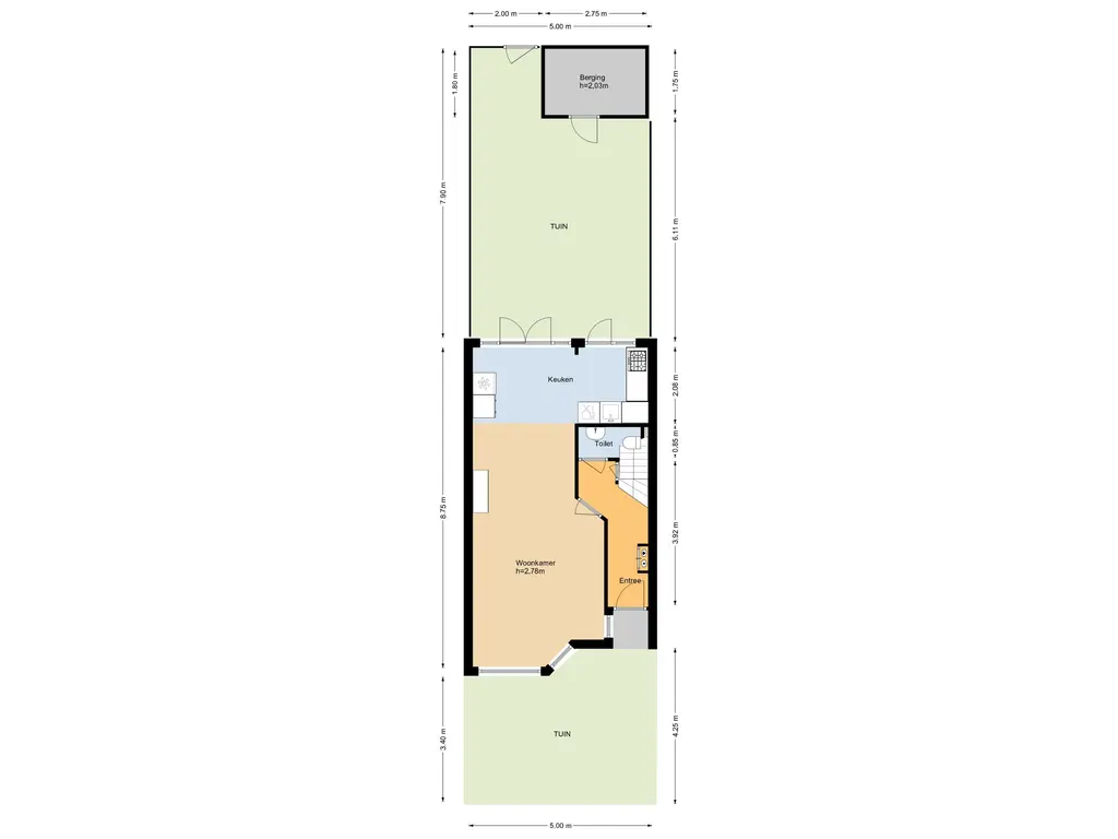
Begane grond:
De sfeervolle voortuin zorgt voor een vriendelijke aanblik en privacy vanaf de straat. Hier is plek voor een zitje of enkele potten, waardoor je ook aan de voorzijde van het huis kunt genieten van de ochtendzon. Je stapt de woning binnen in de hal met originele granito vloer, toilet, meterkast (11 groepen en aardlekschakelaar) en trapopgang naar de 1e verdieping.

De lichte woonkamer is voorzien van een houten vloer en biedt voldoende ruimte voor een gezellige zithoek. Aan de achterzijde van de woning grenst aan de woonkamer de moderne open keuken met openslaande deuren naar de tuin. De keuken is ruim opgezet in een hoekopstelling met een extra blok waarin diverse luxe uitgevoerde inbouwapparatuur verwerkt is. Deze moderne keuken is in 2023 geplaatst en uitgerust met:
- Quooker;
- vaatwasser (Miele);
- inductiekookplaat;
- afzuigkap;
- oven (Miele);
- koel-vriescombinatie (Liebherr).
Ook hier ligt de originele granitovloer en er is een deur naar de tuin.

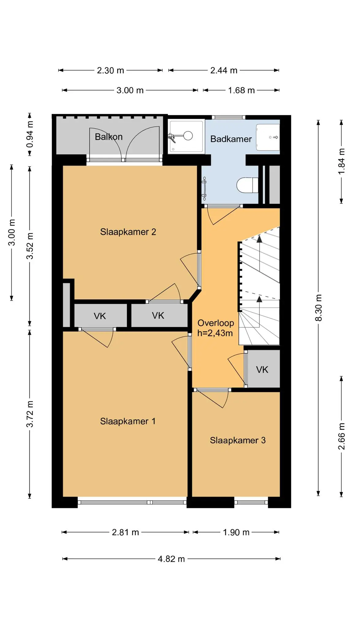
Eerste verdieping:
De overloop geeft toegang tot de badkamer, een praktische inbouwkast en 3 slaapkamers. De grootste slaapkamer aan de achterzijde heeft een inbouwkast en openslaande deuren naar het balkon. Aan de voorzijde vind je nog 2 slaapkamers, waarvan de kleinste geschikt is als kinderkamer of werkkamer. In elke slaapkamer is een sfeervolle lambrisering aangebracht. De gehele 1e verdieping is voorzien van een laminaatvloer. De badkamer is compact maar compleet, volledig betegeld en voorzien van:
- inloopdouche;
- wastafelmeubel;
- tweede toilet;
- handdoekradiator.

Tweede verdieping:
Een vaste trap leidt naar de verrassend ruime zolderverdieping. Dankzij de brede kunststof dakkapel en twee Velux dakramen is dit een lichte en open ruimte met veel mogelijkheden, bijvoorbeeld als slaapkamer, werkkamer of hobbyruimte. Hier vind je ook de aansluiting voor de wasmachine en de cv-ketel (Remeha Avanta, 2008).

Tuin:
De achtertuin ligt gunstig, je kunt er heerlijk genieten van de middagzon en hij is grotendeels betegeld. Er zijn volop mogelijkheden voor een gezellig zitje of speelplek. Achterin de tuin staat een houten berging en er is een achterom.

Afmetingen:
Woonkamer: ca. 21 m²
Keuken: ca. 10 m²
Slaapkamer 1: ca. 10 m²
Slaapkamer 2: ca. 9 m²
Slaapkamer 3: ca. 5 m²
Badkamer: ca. 4 m²
Slaapkamer 4: ca. 18 m²
Berging: ca. 5 m²

Ben je enthousiast geworden over de woning? Neem dan contact op met Bij Viavesta Woningmakelaardij om een bezichtiging in te plannen!
Lees meer

Kenmerken

Overdracht

Status
verkocht
Aanvaarding
in overleg

Bouw

Soort woning
woonhuis
Soort woonhuis
eengezinswoning
Type woonhuis
tussenwoning
Aantal woonlagen
3
Bouwjaar
1935
Onderhoud binnen
goed
Onderhoud buiten
goed
Voorzieningen
dakraam, glasvezel kabel
Isolatie
dakisolatie, dubbel glas, grotendeels dubbelglas, hr glas

Energie

Energielabel
E
Verwarming
cv ketel
Warm water
cv ketel
C.V.-ketel
gas gestookte combi-ketel uit 2008 van Remeha Avanta, eigendom

Oppervlakten en inhoud

Woonoppervlakte
94 m²
Perceeloppervlakte
109 m²
Inhoud
321 m³
Bergruimte oppervlakte
5 m²
Buitenruimte oppervlakte
2 m²

Indeling

Aantal kamers
5

Buitenruimte

Ligging
aan rustige weg, in woonwijk
Tuin
achtertuin met een oppervlakte van 40 m² en is gelegen op het noordoosten

Garage / Schuur / Berging

Garage
geen garage
Parkeergelegenheid
openbaar parkeren
Schuur/berging
vrijstaand hout

Foto's

Plattegronden

Locatie

Downloads

Video's

360° foto's

Afspraak maken?

Vul ons contactformulier in en wij nemen zo snel mogelijk contact met je op.